- Home
- Rider Info
- How To Ride
- User Policy
User Policy
PART has adopted this user policy to protect the safety and general welfare of riders, staff and all visitors to PART facilities:
- Commercial solicitation is not allowed at or within 20 feet of all PART facilities at all times.
- Panhandling is not allowed at or within 20 feet of all PART facilities at all times.
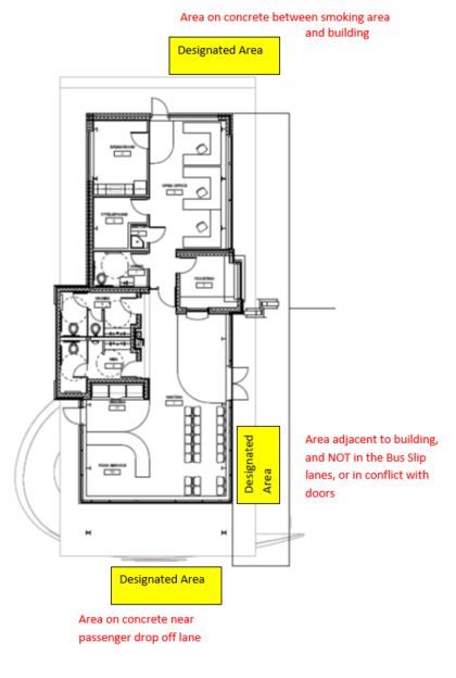
- Petitioning and noncommercial solicitation are allowed at the Coble Transportation Center (CTC) but only in the designated area (see diagram (JPG)) and only during PART's normal days and hours of operation.
- Petitioning and noncommercial solicitation are not allowed in any locations outside of the designated area or at any other PART facilities.
- Petition and noncommercial solicitation in the designated area will not be allowed if it comes within three feet of another person, blocks a person's path or if it becomes bothersome or threatening.
- Loud noises such as shouting, blowing a horn, ringing a bell or using any sound-amplifying system are not allowed .
- Loitering is not allowed at or within 25 feet of any PART facility.
- Free Speech is protected by the First Amendment to the U.S. Constitution and will not be interrupted by this policy.
- Weapons (whether concealed, open carry or otherwise) are prohibited while on or in any PART Express, Vanpool, Shuttle, or any other vehicle owned, leased or operated by PART. This also includes the CTC, parking areas, buildings, and other PART property.
- Overnight Parking is not allowed at the CTC. Violators risk being towed at the vehicle owner's expense.
For more information about this policy, please call 336-883-7278.